Fill in the information below and your telephone number to be re-contacted within 24 hours, from Monday to Friday. If your request concerns a quote, please add your full address in your message!
Contact us for more informations
01.64.40.05.70


The goal of an athletic stadium is to be convenient for every event and used by the athlete. All our products are certified and our expert advisers can help you.
To reach this goal, a sport centre has to be well thought out and well equipped. In order to assist you, Dimasport listed in partnership with the French Athletic Federation all the necessary material according to the level of the athletes, the future organized competitions, the budget .



Partner of top level championships and meetings (European and world championships, French Championship, Paris Diamond league…) Dimasport manufactures high quality product
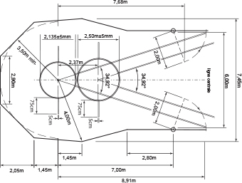
Indoor cage plan


| 10 - 11 (Under eleven) | CM2 - 6ème | 2 kg (1) | 2 kg (1) |
| 12 - 13 (Children) | 6ème - 5ème | 3 kg (1) | 2 kg (1) |
| 14 - 15 (Minors) | 4ème - 3ème | 4 kg | 3 kg (1) |
| 16 - 17 (Cadet) | 5 kg | 3 kg | |
| 18 - 19 (Junior) | 6 kg | 4 kg | |
| Contenders / Seniors | 7.260 kg | 4 kg |
(1) The total length of the hammer could be reduce to 1 meter

| INDOOR SHOT-PUT THROWING SYSTEM | |
| Ref 11400001 / 11400004 / 11400070 / 11400007 | Throwing platform |
| Ref 11400002 / 11400006 | Shot put landing area |
| Ref 22350 | landing system mat cart |
| Ref 1140009 / 1140003 | Throwing cage |
| Ref 11400010 | Foam throwing cage protection |
| OUTDOOR SHOT-PUT THROWING SYSTEM | |
| Ref 11160 / 11161 | Throwing circles |
| Ref 11222 / 11220 / 112221 | Shot put toe board |
| Accessories | |
| Ref 12221 | MOBILE SHOT RACK |
| Ref 12225 | SHOT-PUT CHANNEL |
| Ref 10980 | SHORT THROWING DISTANCE MARKER BOX |
| Ref 21110 / 2111 | CHALK BOWL |
| Ref 21110010 | CHALK/MAGNESIA |
| Ref 11611 | IAAF IMPLEMENT CERTIFICATION KIT |
| Ref 11631 | ELECTRONIC WEIGHING SCALE |
| Ref 11020 | PLASTIC SECTOR LINE |
| Ref 11030 | SET OF 100 METAL STAPLES |
| Ref 11040 | SECTOR LINE CART |
| Ref 10782 / 10781 | PERFORMANCE INDICATOR CART WITH SEAT |
| Ref 10440 | SHORT THROWING DISTANCE FIELD MARKERS |
The discus and hammer throwing can be done in the same area, the hammer circle being smaller, you need a Dima Hammer conversion circle to have a multi-function throwing area.
| DIAMETER OF THE THROWING CIRCLE | |
| HAMMER | 2M135 |
| DISCUS | 2M50 |
There is two types of Discus throwing cages, the fixed ones that have to be sealed thanks ground sleeves and the free-standing one easy to mount and dismantle.


For the hammer throw there is specific throwing circles or Hammer conversion circles that reduce the discus throwing circle in order to adapt it to the hammer throw regulation.




| AGE (indicatif) | CLASSROOM | MEN | WOMEN |
| 10 - 11 (Under eleven) | CM2 - 6ème | 2 kg (1) | 2 kg (1) |
| 12 - 13 (Children) | 6ème - 5ème | 3 kg (1) | 2 kg (1) |
| 14 - 15 (Minor) | 4ème - 3ème | 4 kg | 2 kg (1) |
| 16 - 17 (Cadet) | 5 kg | 3 kg | |
| 18 - 19 (Junior) | 6 kg | 4 kg | |
| Contenders/Seniors | 7.260 kg | 4 kg |
(1) the total hammer length should be reduce to 1 meter.
| AGE (indicatif) | CLASSROOM | MEN | WOMEN |
| 10 - 11 (Under eleven) | CM2 - 6ème | 800 g | 600 g |
| 12 - 13 (Children) | 6ème - 5ème | 1 kg | 600 g |
| 14 - 15 (Minor) | 4ème - 3ème | 1.250 kg | 800 g |
| 16 - 17 (Cadet) | 1.5 kg | 1 kg | |
| 18 - 19 (Junior) | 1.750 kg | 1 kg | |
| Contenders/Seniors | 2 kg | 1 kg |

| Ref 13278 | DISCUS STEEL CAGE WITH GROUND SLEEVES |
| Ref 13270 / 13277 | PORTABLE ALUMINUM DISCUS CAGE |
| Ref 11200 / 11201 | DISCUS CIRCLE |
| Ref 13288 / 13289 | STEEL HAMMER CAGE WITH GROUND SLEEVES |
| Ref 11200 / 11201 | DISCUS CIRCLE |
| Ref 11190 | HAMMER CONVERSION CIRCLE |
| Ref 13339 | ROLLING STRIPS |
| Ref 12213 | MOBILE DISCUS RACK |
| Ref 13360 | ANTI-REBOUND SAFETY NET |
| Ref 11000 | LONG THROWING DISTANCE MARKER BOX |
| Ref 21110 / 2111 | CHALK BOWL |
| Ref 21110010 | CHALK/MAGNESIA |
| Ref 11611 | IAAF IMPLEMENT CERTIFICATION KIT |
| Ref 11631 | ELECTRONIC WEIGHING SCALE |
| Ref 11020 | PLASTIC SECTOR LINE |
| Ref 11030 | METAL STAPLES |
| Ref 11040 | SECTOR LINE CART |
| Ref 10782 / 10781 | PERFORMANCE INDICATOR CART |
| Ref 10460 | LONG THROWING DISTANCE FIELD MARKERS |
| Ref 13360 | ANTI-REBOUND SAFETY NET WITH SUPPORTS |
| Ref 11000 | LONG THROWING DISTANCE MARKER BOX |
| Ref 21110 / 2111 | CHALK BOWL |
| Ref 21110010 | CHALK BOWL |
| Ref 11611 | IAAF IMPLEMENT CERTIFICATION KIT |
| Ref 11631 | IAAF IMPLEMENT CERTIFICATION KIT |
| Ref 11020 | PLASTIC SECTOR LINE |
| Ref 11030 | METAL STAPLES |
| Ref 11040 | SECTOR LINE CART |
| Ref 10782 / 10781 | PERFORMANCE INDICATOR CART |
| Ref 10460 | LONG THROWING DISTANCE FIELD MARKERS |